Skip to main content
×
This is a custom message!
Contact
Location
USD ($)
USD ($)
EUR (€)
GBP (£)
Login
/
Register
Plazium
Search products, categories, and brands
Room
Cart
0
Wishlist
Sell Now
Business
Accounting & Finance
Accounting & Bookkeeping
Financial Consulting
Financial Forecasting & Modeling
Tax Consulting
Personal bank account
Business Bank Account
Show All
AI for Businesses
AI Lessons
AI Strategy
Business Management
Business Consulting
Business Plans
Business Registration
Market Research
Business address
Buying and owning a business
Show All
E-Commerce Management
Amazon Experts
Etsy Experts
Product Research
Shopify Experts
Store Management
General & Administrative
HR Consulting
Online Investigations
personal assistant
Project Management
Supply Chain Management
Virtual Assistant
Show All
Legal Services
Applications & Registrations
Legal Consulting
Legal Review
Miscellaneous
Event Management
Fact Checking
Product Management
Professional Development
Career Counseling
Life Coaching
Sales & Customer Care
Call Center & Calling
Customer Care
Lead Generation
Sales
Software Management
CRM Management
ERP Management
Apply for licenses and permits
Business Licenses
Immigration
Immigration consulting
Citizenship Counseling
Visa Counseling
Passport and residence permit
Buying citizenship
Passport
residency card
Visa
Work visa
Investment visa
Business visa
Tourist visa
Visa treatment
Study visa
Show All
Educational apply
School Admission
University Admission
Immigration by Investment
Buying property
Fix rejection
Fix visa refusal
Rejection Counseling
Removal of deportation
Other immigration services
Asylum seekers and refugees
Visa Extension
Reviewing and completing files
Graphics & Design
Architecture & Building Design
Architecture & Interior Design
Building Engineering
Landscape Design
Art & Illustration
AI Artists
AI Avatar Design
Cartoons & Comics
Children's Book Illustration
Illustration
Portraits & Caricatures
Show All
Fashion & Merchandise
Fashion Design
Jewelry Design
T-Shirts & Merchandise
Logo & Brand Identity
Brand Style Guides
Business Cards & Stationery
Fonts & Typography
Logo Design
Marketing Design
Email Design
Signage Design
Social Media Design
Social Posts & Banners
Web Banners
Packaging & Covers
Album Cover Design
Book Covers
Book Design
Packaging & Label Design
Print Design
Brochure Design
Catalog Design
Flyer Design
Menu Design
Poster Design
Product & Gaming
Character Modeling
Game Art
Graphics for Streamers
Industrial & Product Design
Visual Design
AI Image Editing
Background Removal
Image Editing
Infographic Design
Presentation Design
Vector Tracing
Show All
Web & App Design
App Design
Icon Design
Landing Page Design
UX Design
Website Design
3D Design
3D Architecture
3D Fashion & Garment
3D Game Art
3D Industrial Design
3D Landscape
3D Printing Characters
Show All
Personal Growth
Fashion & Style
Modeling & Acting
Styling & Beauty
Trend Forecasting
Gaming
eSports Management & Strategy
Game Coaching
Game Matchmaking
Game Recordings & Guides
Gameplay Experience & Feedback
Ingame Creation
Show All
Leisure & Hobbies
Arts & Crafts
Astrology & Psychics
Collectibles
Cosplay Creation
Puzzle & Game Creation
Traveling
Show All
Miscellaneous
Cosmetics Formulation
Embroidery Digitizing
Family & Genealogy
Greeting Cards & Videos
Other
Self Improvement
Career Counseling
Generative AI Lessons
Language Lessons
Life Coaching
Online Tutoring
Wellness & Fitness
Fitness
Nutrition
Wellness
Consulting
Business Consultants
AI Consulting
Business Consulting
Business Plans
E-commerce Consulting
HR Consulting
Legal Consulting
Show All
Coaching & Advice
Game Coaching
Life Coaching
Mindfulness Coachin
Nutrition Coaching
Styling & Beauty Advice
Travel Advice
Show All
Data Consulting
Data Analytics Consulting
Data Visualization Consulting
Databases Consulting
Marketing Strategy
Content Strategy
Influencers Strategy
PR Strategy
SEM Strategy
Social Media Strategy
Video Marketing Consulting
Show All
Mentorship
Design Mentorship
Marketing Mentorship
Music Mentors
Video Mentorship
Writing Mentorship
Tech Consulting
AI Technology Consulting
Cybersecurity Consulting
Game Development Consulting
Mobile App Consulting
Software Development Consulting
Website Consulting
Show All
Photography
Local Photography
All Cities
Photographers in London
Photographers in Los Angeles
Photographers in New York
Photographers in Paris
Miscellaneous
Other
Photo Preset Creation
Photography Classes
People & Scenes
Event Photographers
Portrait Photographers
Real Estate Photographers
Scenic Photographers
Products & Lifestyle
Food Photographers
Lifestyle & Fashion Photographers
Product Photographers
Video & Animation
Editing & Post-Production
Intro & Outro Videos
Subtitles & Captions
Video Art
Video Editing
Video Templates Editing
Visual Effects
Show All
AI Video
AI Music Videos
AI Video Art
AI Video Avatars
Animation
Animated GIFs
Animation for Kids
Animation for Streamers
Character Animation
NFT Animation
Rigging
Show All
Explainer Videos
Animated Explainers
Crowdfunding Videos
eLearning Video Production
Live Action Explainers
Screencasting Videos
Filmed Video Production
Filmed Video Production
Videographers
Miscellaneous
Article to Video
Game Recordings & Guides
Game Trailers
Meditation Videos
Real Estate Promos
Virtual & Streaming Avatars
Show All
Motion Graphics
Logo Animation
Lottie & Web Animation
Text Animation
Presenter Videos
Spokesperson Videos
TikTok UGC Videos
UGC Ads
UGC Videos
Product Videos
3D Product Animation
App & Website Previews
Corporate Videos
E-Commerce Product Videos
Social & Marketing Videos
Music Videos
Slideshow Videos
Social Media Videos
Video Ads & Commercials
Educational services
Programming & Tech
Miscellaneous
Convert Files
Discord Server Setup
Support & IT
Electronics Engineering
Development for Streamers
Website Development
Business Websites
E-Commerce Development
Dropshipping Websites
Landing Page
Website Platforms
Shopify
WordPress
Wix
Custom Websites
Website Maintenance
Speed Optimization
Backup & Migration
Bug Fixes
Website Customization
AI Development
AI Chatbot
AI Applications
AI Integrations
AI Agents
AI Fine-Tuning
Custom GPT Apps
Show All
Chatbot Development
Discord
Telegram
Botpress
TikTok
Facebook Messenger
Game Development
Mobile Games
Full Game Creation
Gameplay Experience & Feedback
PC Games
Mobile App Development
Cross-platform Development
Android App Development
IOS App Development
Website to App
Mobile App Maintenance
Wearable App Development
Smartwatch Development
VR Headset Development
Support & Cybersecurity
Cybersecurity
DevOps Engineering
Support & IT
Cloud Computing
Convert Files
Software Development
Web Applications
APIs & Integrations
Desktop Applications
Browser Extensions
Scripting
QA & Review
Show All
Blockchain & Cryptocurrency
Decentralized Apps
Cryptocurrencies & Tokens
Blockchain Protocol Development
Chain Analysis
Exchange Platforms
Blockchain Security & Auditing
Show All
Digital goods
More
Selling physical goods
Finance
Accounting Services
Bookkeeping
Financial Reporting
Find a Financial Expert
Fractional CFO Services
Payroll Management
Corporate Finance
Corporate Finance Strategy
Due Diligence
Mergers & Acquisitions Advisory
Valuation
Financial Planning & Analysis
Budgeting and Forecasting
Cost Analysis
Financial Modeling
Stock Analysis
Fundraising
Funding Pitch Presentations
Fundraising Consultation
Investors Sourcing
Personal Finance & Wealth Management
Investments Advisory
Online Trading Lessons
Personal Budget Management
Tax Consulting
Tax Compliance
Tax Exemptions
Tax Identification Services
Tax Planning
Tax Returns
Attorney and legal consultant
Lawyer
Immigration lawyer
Real estate lawyer
Economic Crime Lawyer
legal Lawyer
Criminal defense lawyer
Family lawyer
Legal Consultancy
Business Cases Consulting
Criminal Cases Consulting
Family Cases Counseling
Financial Cases Consulting
International Cases Consulting
Internet Crime Cases Counseling
Legal Content Writing
Protest Letter Writing
Writing other legal texts
Writing a Petition Letter
Write a complaint
Judicial Writing
Contract writing
Real estates
Commercial properties
Buying Commercial properties
Renting Commercial properties
Selling Commercial properties
Short term rental
Construction projects
Buying Properties
Buying property
Participation in construction
Salling Properties
With installment terms
Dilapidated properties
Buying Dilapidated properties
Renting Dilapidated properties
Selling Dilapidated properties
Garden and villa
Buying Garden and villa
Renting Garden and villa
Selling Garden and villa
Short term rental
Industrial properties
Buying Industrial properties
Renting Industrial properties
Selling Industrial properties
Land
Buying land
Renting Land
Selling land
Office real estate
Buying Office Real Estate
Renting Office Real Estat
Selling Office Real Estate
Residential properties
Buying Residential properties
Renting a residential property
Selling Residential properties
Short term rental
Digital Marketing
Analytics & Strategy
Conversion Rate Optimization (CRO)
Marketing Advice
Marketing Concepts & Ideation
Marketing Strategy
Web Analytics
Channel Specific
Facebook Ads Campaign
Google SEM
Instagram Marketing
Shopify Marketing
TikTok Shop
Industry & Purpose-Specific
Book & eBook Marketing
Mobile App Marketing
Music Promotion
Podcast Marketing
Methods & Techniques
E-Commerce Marketing
Email Automations
Email Marketing
Guest Posting
Guest Posting
Video Marketing
Miscellaneous
Crowdfunding
Other
Search
Search Engine Optimization (SEO)
E-Commerce SEO
Local SEO
Search Engine Marketing (SEM)
Video SEO
Social
Community Management
Influencer Marketing
Paid Social Media
Social Commerce
Social Media Marketing
Writing & Translation
Miscellaneous
eLearning Content Development
Technical Writing
Book & eBook Publishing
Beta Reading
Book & eBook Writing
Book Editing
Business & Marketing Copy
Brand Voice & Tone
Ad Copy
Business Names & Slogans
Case Studies
Product Descriptions
White Papers
Content Writing
Articles & Blog Posts
Content Strategy
Creative Writing
Podcast Writing
Scriptwriting
Website Content
Industry Specific Content
Business, Finance & Law
Health & Medical
Internet & Technology
Marketing
News & Politics
Real Estate
Translation & Transcription
Interpretation
Localization
Transcription
Translation
Career Writing
Cover Letters
Job Descriptions
Resume Writing
LinkedIn Profiles
Editing & Critique
AI Content Editing
Proofreading & Editing
Writing Advice
Music & Audio
Sound Design
Audio Logo & Sonic Branding
Audio Plugin Development
Custom Patches & Samples
Meditation Music
Sound Design
Audio Engineering & Post Production
Audio Editing
Vocal Tuning
DJing
DJ Mixing
Remixing
DJ Drops & Tags
Lessons & Transcriptions
Music & Audio Advice
Music Transcription
Online Music Lessons
Music Production & Writing
Composers
Custom Songs
Jingles & Intros
Session Musicians
Singers & Vocalists
Songwriters
Streaming & Audio
Audio Ads Production
Voice Synthesis & AI
Podcast Production
Audiobook Production
Voice Over & Narration
24hr Turnaround
Female Voice Over
French Voice Over
German Voice Over
Male Voice Over
0
Search products mobile
Sell Now
Main Menu
Categories
Home
Wishlist
Contact
Blog
Login
Register
Location
USD ($)
USD ($)
EUR (€)
GBP (£)
Business
Immigration
Graphics & Design
Personal Growth
Consulting
Photography
Video & Animation
Educational services
Programming & Tech
Digital goods
Selling physical goods
Finance
Attorney and legal consultant
Real estates
Digital Marketing
Writing & Translation
Music & Audio
Login
Forgot Password?
Login
Don't have an account?
Register
Select Location
Filter products by location
Country
Afghanistan
Albania
Algeria
American Samoa
Andorra
Angola
Anguilla
Antarctica
Antigua and Barbuda
Argentina
Armenia
Aruba
Australia
Austria
Azerbaijan
Bahamas
Bahrain
Bangladesh
Barbados
Belarus
Belgium
Belize
Benin
Bermuda
Bhutan
Bolivia
Bosnia and Herzegovina
Botswana
Bouvet Island
Brazil
British Indian Ocean Territory
Brunei Darussalam
Bulgaria
Burkina Faso
Burundi
Cambodia
Cameroon
Canada
Cape Verde
Cayman Islands
Central African Republic
Chad
Chile
China
Christmas Island
Cocos (Keeling) Islands
Colombia
Comoros
Congo
Cook Islands
Costa Rica
Croatia (Hrvatska)
Cuba
Cyprus
Czech Republic
Denmark
Djibouti
Dominica
Dominican Republic
East Timor
Ecuador
Egypt
El Salvador
Equatorial Guinea
Eritrea
Estonia
Ethiopia
Falkland Islands (Malvinas)
Faroe Islands
Fiji
Finland
France
France, Metropolitan
French Guiana
French Polynesia
French Southern Territories
Gabon
Gambia
Georgia
Germany
Ghana
Gibraltar
Greece
Greenland
Grenada
Guadeloupe
Guam
Guatemala
Guernsey
Guinea
Guinea-Bissau
Guyana
Haiti
Heard and McDonald Islands
Honduras
Hong Kong
Hungary
Iceland
India
Indonesia
Iran
Iraq
Ireland
Isle of Man
Israel
Italy
Ivory Coast
Jamaica
Japan
Jersey
Jordan
Kazakhstan
Kenya
Kiribati
Kosovo
Kuwait
Kyrgyzstan
Lao
Latvia
Lebanon
Lesotho
Liberia
Libyan Arab Jamahiriya
Liechtenstein
Lithuania
Luxembourg
Macau
Macedonia
Madagascar
Malawi
Malaysia
Maldives
Mali
Malta
Marshall Islands
Martinique
Mauritania
Mauritius
Mayotte
Mexico
Micronesia, Federated States of
Moldova, Republic of
Monaco
Mongolia
Montenegro
Montserrat
Morocco
Mozambique
Myanmar
Namibia
Nauru
Nepal
Netherlands
Netherlands Antilles
New Caledonia
New Zealand
Nicaragua
Niger
Nigeria
Niue
Norfolk Island
North Korea
Northern Mariana Islands
Norway
Oman
Pakistan
Palau
Palestine
Panama
Papua New Guinea
Paraguay
Peru
Philippines
Pitcairn
Poland
Portugal
Puerto Rico
Qatar
Reunion
Romania
Russian Federation
Rwanda
Saint Kitts and Nevis
Saint Lucia
Saint Vincent and the Grenadines
Samoa
San Marino
Sao Tome and Principe
Saudi Arabia
Senegal
Serbia
Seychelles
Sierra Leone
Singapore
Slovakia
Slovenia
Solomon Islands
Somalia
South Africa
South Georgia South Sandwich Islands
South Korea
Spain
Sri Lanka
St. Helena
St. Pierre and Miquelon
Sudan
Suriname
Svalbard and Jan Mayen Islands
Swaziland
Sweden
Switzerland
Syrian Arab Republic
Taiwan
Tajikistan
Tanzania
Thailand
Togo
Tokelau
Tonga
Trinidad and Tobago
Tunisia
Turkey
Turkmenistan
Turks and Caicos Islands
Tuvalu
Uganda
Ukraine
United Arab Emirates
United Kingdom
United States
United States minor outlying islands
Uruguay
Uzbekistan
Vanuatu
Vatican City State
Venezuela
Vietnam
Virgin Islands (British)
Virgin Islands (U.S.)
Wallis and Futuna Islands
Western Sahara
Yemen
Zaire
Zambia
Zimbabwe
State
City
Select Location
Product successfully added to your cart!
Home
Products
Graphics & Design
Architecture & Building Design
Building Engineering
Building Engineering
Filter Products
Most Recent
Most Recent
Lowest Price
Highest Price
Highest Rating
Category
Building Engineering
Price
-
Filter by keyword
Filter
Most Recent
Most Recent
Lowest Price
Highest Price
Highest Rating
I will make septic tank and leech field drawing for your residence
AjmanMuhammed_85068
0
912
$
430
I will convert sketch, PDF, image drawing to autocad
AjmanMuhammed_85068
0
933
$
800
I will do rescheck comcheck for energy code compliance for permits
AjmanMuhammed_85068
0
961
$
500
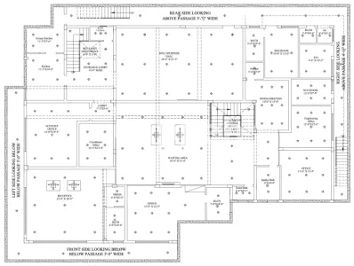
I will do under floor heating ufh system design heatloss
AjmanMuhammed_85068
0
928
$
700
I will provide complete electrical take off, labor, and cost estimation
AjmanMuhammed_85068
0
1009
$
300
I will design pv solar system using helioscope pvsyst sketchup and solaredge
AjmanMuhammed_85068
0
1033
$
600
I will do structural design of keystone, cmu, gabion retaining wall
AjmanMuhammed_85068
0
938
$
400
I will do phasing animation for construction
AjmanMuhammed_85068
0
930
$
350
I will do fire alarm and low voltage design cad nicet 3 certified
AjmanMuhammed_85068
0
947
$
900
I will do site work, earthwork, landscape, utility package takeoff
AjmanMuhammed_85068
0
920
$
1,000
I will make erosion control, grading, and drainage plans in autocad
AjmanMuhammed_85068
0
984
$
400
I will do a radiant floor heating design
AjmanMuhammed_85068
0
911
$
550
I will draw architectural and structural shop drawings
AjmanMuhammed_85068
0
883
$
270
I will create deck, patio, porch permit drawing set
AjmanMuhammed_85068
0
848
$
470
I will solar proposal and permit plan sets, engineering stamp
AjmanMuhammed_85068
0
893
$
400
I will do tempered glass design drawing, cutting list and boq
AjmanMuhammed_85068
0
1007
$
320
I will offer geotechnical engineering simulation
AjmanMuhammed_85068
0
849
$
200
I will do low voltage, voice, data, fire alarm, cctv, access control, elv design
AjmanMuhammed_85068
0
967
$
500
I will be your civil engineer
AjmanMuhammed_85068
0
896
$
2,000
I will do any scaffold design
AjmanMuhammed_85068
0
924
$
350
I will do parking lot, parking lot layout plan, site layout plan
AjmanMuhammed_85068
0
961
$
90
I will analyze and design the structure with structural software
AjmanMuhammed_85068
0
922
$
1,000
I will structural engineer , steel structure, timber, truss framing plan , timber frame
AjmanMuhammed_85068
0
884
$
85
I will do wood, steel and concrete structural design, structural engineer
AjmanMuhammed_85068
0
950
$
550
I will prepare estimate and claims using xactimate
AjmanMuhammed_85068
0
984
$
75
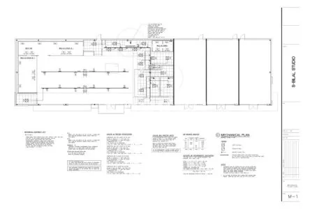
I will do mechanical, electrical and plumbing designing on revit
AjmanMuhammed_85068
0
207
$
90
I will do hvac design, cooling, heating load, for permit
AjmanMuhammed_85068
0
916
$
190
I will do the structural calculations of your project
AjmanMuhammed_85068
0
869
$
4,000
I will draft complete set of construction drawings for city permit
AjmanMuhammed_85068
0
981
$
95
Our agency will do complex structure design and civil engineering tasks
AjmanMuhammed_85068
0
990
$
1,500
I will be your roblox modeler and builder
AjmanMuhammed_85068
0
980
$
75
I will do detailing and estimation of cold formed steel structure
AjmanMuhammed_85068
0
843
$
150
I will do quantity takeoff, material take off and cost estimation
AjmanMuhammed_85068
0
993
$
80
I will redraw any kind of electrical drawings in autocad
AjmanMuhammed_85068
0
931
$
70
I will do manual j d and s load calculations with duct design
AjmanMuhammed_85068
0
1006
$
190
I will do commercial and residential mep plans,electrical drawings,plumbing,hvac
AjmanMuhammed_85068
0
903
$
80
I will do architecture, mep, hvac, plumbing, electrical permit drawings
AjmanMuhammed_85068
0
945
$
270
I will do hvac calculation and duct design for permit
AjmanMuhammed_85068
0
898
$
150
I will be your structural engineer for timber structures
AjmanMuhammed_85068
0
948
$
550
I will draw electrical and plumbing drawing blueprint
AjmanMuhammed_85068
0
936
$
95